The Line Library
New York
(Academic)
Columbia University, GSAPP
Spring 2019
Studio Leader:
Mimi Hoang
Studio Critic:
Gordon Kipping
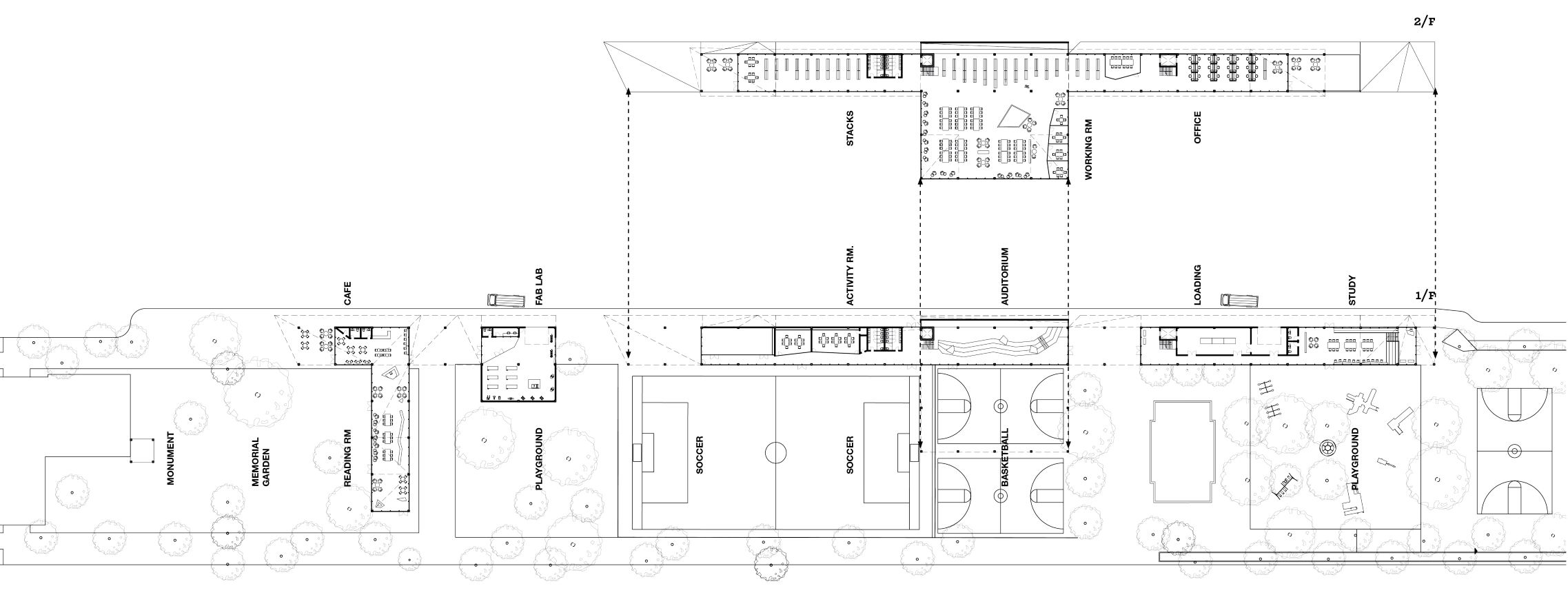
Library today serves more than just an archive of literature. It is an accessible public space that houses a variety of supplementary programs to enrich the functions of a library and engage the community from all possible angles.
The Line Library is a building that weaves library programs together with an existing park program. Through the unraveling of spaces of a library and spreading them across the site, this project aims to create unusual situations, where events between two types of public spaces.















